Casa Fisher

Introdução
“Eu sempre começo com quadrados”, disse Louis Kahn. Basta uma rápida revisão das plantas de seus edifícios mais famosos, dos banhos de Centro da Comunidade Judaíca em Trenton, a Assembléia Nacional de Bangladesh para confirmar esta observação. Às vezes, todo o edifício é quadrado (a Biblioteca da Phillips Exeter Academy, Exeter, New Hampshire), mas mais frequentemente o projeto se configura como um conjunto de praças (as torres do edifício Richards Medical Building Research em Filaldéfia , Pensilvânia).
Localização
Construído em torno de Hatboro, Estado da Pensilvânia, Estados Unidos.
Conceito
A Fisher House é a expressão mais simples da idéia de Kahn: dois baldes, um para a sala de estar e um para os quartos, que são jogados em um ângulo como se por acaso, como dados jogados na mesa. Na verdade, eles não são cubos perfeitos, e os “hub” da sala de estar não é mesmo quadrado no plano, mas estão perto o suficiente para ser percebida como tal.
Descrição
Como na Casa Esherick, a ventilação é fornecida por janelas com persianas de madeira profundamente atrasadas do plano da fachada, para que este não se projetam quando aberto.
Janelas
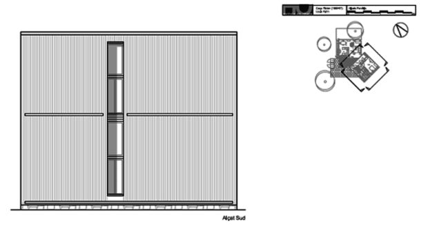
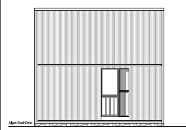
O aspecto mais complexo da fachada é a disposição das janelas, que têm amplas superfícies vidradas justapostos com entradas profundas contendo janelas menores. Isto leva a uma geometria abstrata, que também é revelada na casa com itens como um banco de janela de composição complexa na sala de estar.
Para Kahn, o espaço ea luz foram a mesma coisa, e orientação, a arte precisa. A sala de estar voltada para o norte e para o rio, através de uma janela de canto elaborado incorporando um móveis sob medida.
Um menor janelas localizadas no noroeste e sudoeste equilíbrio de luz fachadas e ajudar a suavizar o brilho, permitindo a entrada do sol da tarde ocasional.
Espaços

Exterior
O exterior é extraordinário, dois volumes cúbicos, uma localizada a um ângulo de 45 graus em relação ao outro com uma fraca ligação entre os dois o que resulta numa configuração dinâmica.
Semelhante à extensão da galeria de arte da Universidade de Yale, na casa Fisher usa uma linha horizontal de referência estreitas fachadas de madeira para marcar o segundo andar do volume.
A poucos metros do edifício principal foram erigidos dois pequenos apartamentos que têm a função de armazenamento.
Interior
- Sala
O fato de que a sala está localizada em um bloco separado é um exemplo de um outro muito característico preferência Kahn. Ele não gostava de os edifícios em que uma forma unificada interior é dividido para criar espaços utilizáveis. Idealmente, Kahn queria que cada espaço ou quarto, tinha o seu próprio caminho. Em um grande edifício, este era pouco prático ou econômico, mas uma casa privada mais facilmente permitem a abordagem ideal.
A única superfície inclinada localizado volume de orthogonally cúbico é a lareira de pedra na sala de estar, o que reitera o ângulo de 45 graus a partir do volume cúbico adjacente.
- Sala de Jantar
A sala de jantar, localizada atrás da casa, era originalmente para ser um bastante escuro e isolado, com apenas uma pequena janela, mas insistiu que os clientes queriam ter vista para o exterior, de modo que, poucos meses após a conclusão da casa, eles introduziram uma janela maior.
- Cozinha
A sala de estar da casa completamente cheia Fisher como ele ocupa, embora compartilhada com a cozinha.
Isto é porque a cozinha tem a sua própria forma, um cubo dentro de um cubo. O espaço da sala de estar continua e em torno dela.
- Quartos
No bloco de dois andares atribuídos aos quartos, é mais difícil de manter a integridade formal de cada quarto. Ele tem de ser subdividido. No entanto, cada um dos seus espaços é completo e consistente. Por exemplo, o de dois quartos piso superior, voltada para o leste são quadrados (quase) perfeito, cada um sendo um quarto do quadrado em planta, ou um oitavo da maior cubo.
A casa também tem um lobby na entrada principal, dois banheiros, um em cada andar, um banheiro, um quarto de vestir e uma porão – armazenamento.
Estrutura
A casa fica em uma estrutura de plataforma, construído com uma estrutura de madeira com pilares que repousam sobre o resultado vigas na seguinte construção da usina.
Para acomodar a ligeira inclinação do terreno, Kahn Fisher deu origem a uma base de pedra que compensa a mudança na inclinação e oferece um nível mais baixo, com vista para o jardim.
Materiais
A Kahn amava a pedra, o material das ruínas de idade, que tinha admirado durante a sua estadia em Roma. Na Pensilvânia era mais barato construir em madeira, de modo que para a Fisher House, Kahn adotou a tecnologia tradicional estrutura de plataforma integrada. Mas o enredo estava inclinado para um rio e havia uma necessidade de um porão para armazenamento. Portanto, Kahn poderia usar gesso como base para a estrutura de madeira, levando mesmo ao centro da sala de estar, na forma de uma casa semi-cilíndrica.
O trabalho em madeira em toda a casa é de madeira.
As fachadas tapume é cedro. A casa é composta principalmente de um tapume de madeira vertical. A Fischer esperaram quase sete anos para a sua casa pronta, o projeto está sempre indo para o segundo lugar, quando Kahn foi encomendado major-que embora pareça que eles gostaram, tendo trabalho limpar e tratar regularmente a sua tapume do cedro, mesmo muitos anos após o fim da casa.
Vídeos




























