Casa Robie

Introdução
A última e maior das casas na pradaria de Wright, Robie House, parece projetado para uma planície, ao invés de terreno de canto estreito que está localizado em Hyde Park, um subúrbio de Chicago .
Na época em que foi construído, a forma horizontal exagerado deve parecer uma aparência estranha entre vizinhos convencionais e em linha reta.
Uma das razões para o enorme sucesso desta casa encontra-se nas exigências explícitas do cliente.
Queria uma casa protegida sem fogo interior como “blocos”, sem os elementos decorativos habituais, tais como cortinas e tapetes comprados, etc. Como engenheiro, Frederick C. Robie, queria uma casa que funciona bem como uma boa máquina. A situação no ângulo de campo em grande parte explica a sua forma muito semelhante à de outros “Prairie Houses”.
Localização
A Robie House também conhecido como “A Robie House” está localizado em uma esquina, no bairro de Hyde Park, perto da Universidade de Chicago. Especificamente em 5757 Woodlawn Avenue, Chicago, Illinois.
Descrição
Exteriores
Você não tem fachadas, não tem paredes exteriores ou janelas “normal”, nem com a entrada principal. Ocupa todo o enredo, o pequeno espaço livre se junta a composição global estratificada por muros baixos e plantadores de trabalho. A horizontalidade é reforçada pelas soleiras, vergas de janelas e florões de pedra, bem como fábrica de tijolo fino com juntas de argamassa recesso.
Método composicional
O método de composição Wright na época era organizar agrupados assimetricamente formas simétricas.
A base da composição é um bloco longo de dois andares, aparentemente, simétrico, com um declive suave e cobrir uma atrevidísimos saliências em ambas as extremidades. No primeiro andar da fachada sul, que dá para a rua, há uma série contínua de janelas francesas que se abrem para uma folha varandas suspensas, como o convés de um navio. A varanda lança uma sombra profunda sobre uma série semelhante de janelas no piso térreo.
Simetria é uma ilusão, uma vez que o terraço elevado do extremo oeste da casa, localizada em um porão, é em relação ao muro do pátio de serviço aberta, no extremo leste. Mas é apenas um fator em uma equação mais complexa.
Acima do bloco principal, um quarto no segundo andar, também com janelas, varandas e telhado inclinado cria o eixo excêntrico que põe em movimento toda a composição. De um lado, surge uma grande lareira que ancora todos os planos horizontais abaixo dela. Além disso, no extremo leste do prédio, outro telhado inclinado cobre o ala dedicada a uma garagem para 3 carros e pessoal de serviço.
Conceito
A casa foi projetada por Frederick C. Robie, um fabricante de bicicletas, que não queria que sua casa vitoriana de distância. Seu programa era moderna: precisava de uma garagem e um parque infantil para as crianças. Ele também pediu que a casa é à prova de fogo e que os quartos não resultou “caixas” e que não contenham decorações adicionais.
Espaços
Wright rejeitaram os critérios até agora existentes nos espaços interiores fechados e isolados uns dos outros. Em contraste espaços projetados em cada quarto ou sala aberta para o outro, por isso tem grande transparência visual, abundância de sensação leve e aberto. Para diferenciar uma área da outra, recorreu a divisões leves ou diferentes tetos de altura, evitando paredes sólidas desnecessários. Então, Wright estabeleceu pela primeira vez a diferença entre “espaços definidos” e “indoor”.
O principal mérito de Wright no projeto desta casa é romper com a idéia da casa como uma caixa contendo outros quartos que foram casos isolados. Por outro lado, o espaço interior é fluida e transparente, permitindo a entrada de luz a visão desobstruída. Este “boom box” permite retrocesso suave das massas que se desdobram em toda a terra.
A composição de plantas baseia-se em duas barras adjacentes são misturados num volume central, presidiu pelo volume da lareira, em torno do qual estão dispostas as salas e interligado.
O volume utiliza grandes terraços e beirais para alcançar uma morfologia sólida e oca resistente e leve. Este conjunto de beirados e varandas amplas seria usado por Wright Fallingwater House.
A casa é dividida em duas alas, mantendo a área pública para a rua e área de serviço na parte mais interna.
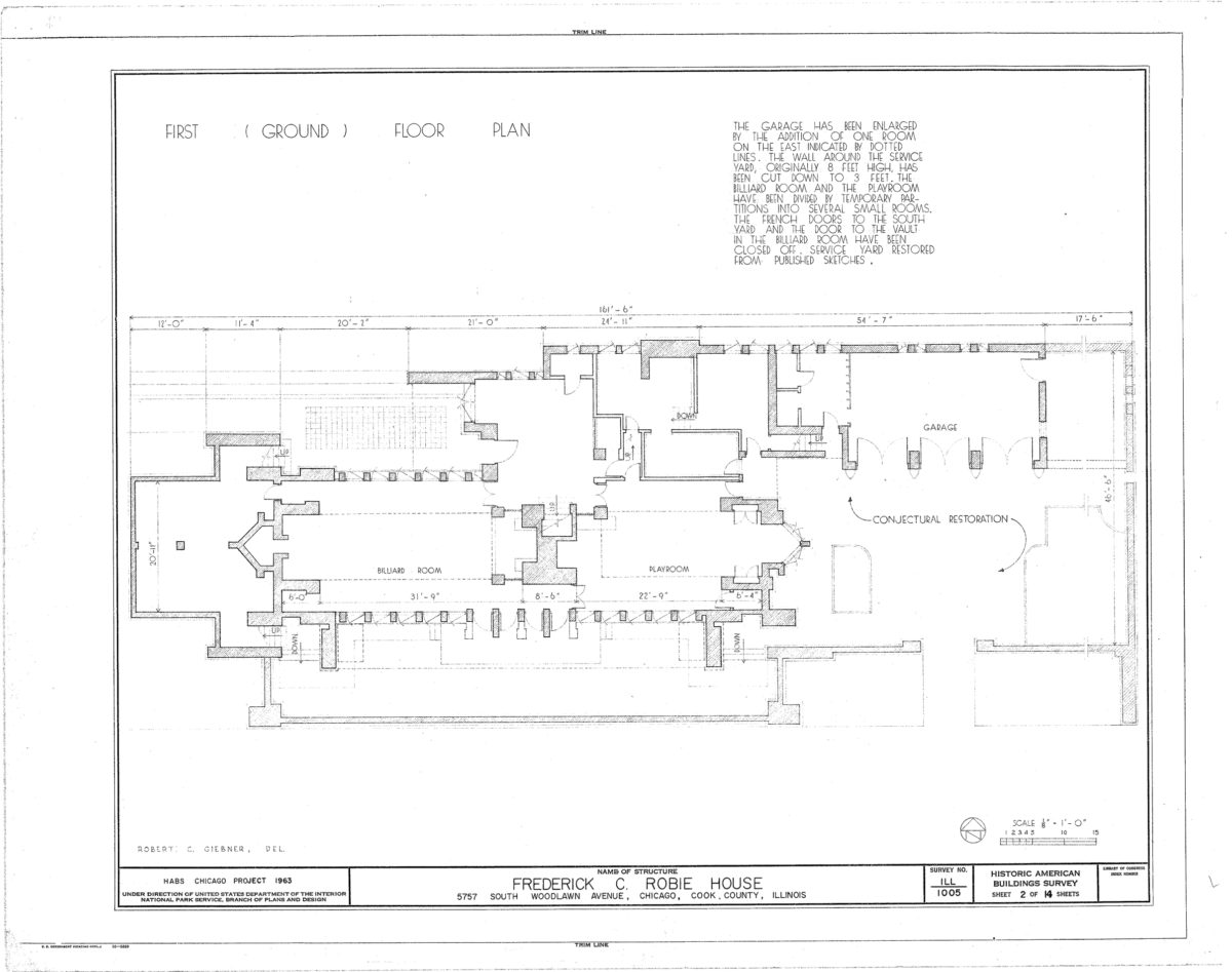
- Térreo
Sala de jogos e sala de bilhar que definem o mais público desta planta, separadas por uma lareira. Em ambos os ambientes Wright optou para expor o sistema de viga estrutural no telhado, de modo a dar uma impressão de altura para os ambientes.
Este andar também abriga a máquinas de aquecimento, lavanderia, despensa e garagem para 3 carros. O acesso à casa situa-se neste nível, situados lateralmente, através de escadas que levam ao piso principal.
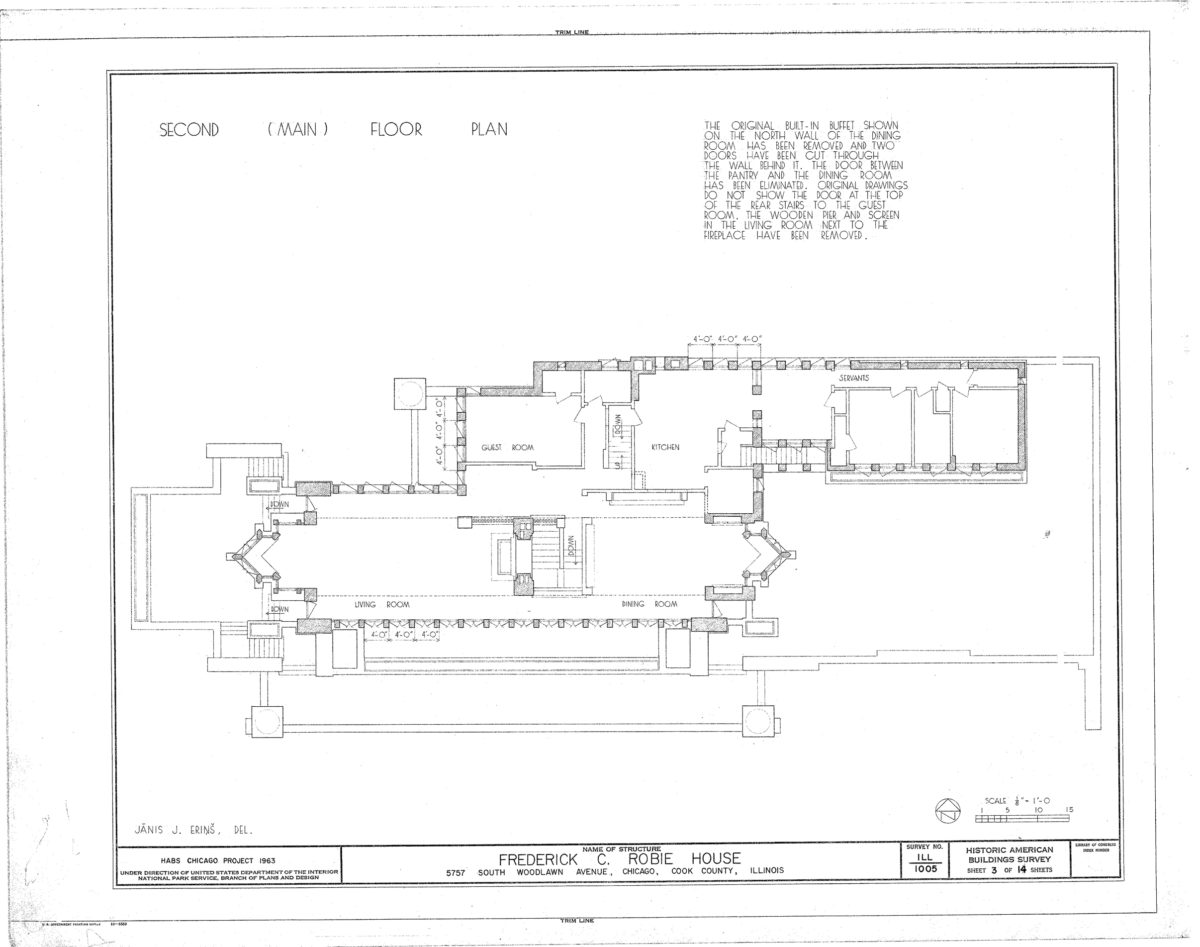
- Segundo nível
No segundo andar, a ala de serviço consiste na cozinha e quartos dos empregados. Mas, sem dúvida, os ambientes mais interessantes da casa são os de estar e jantar, dois quartos separados, mas ligados pela lareira visualmente. Estes quartos gozam de grande amplitude, sem obstruir as paredes visual externo, que lembra a amplitude da pradaria enquanto o lucro generoso permitir luz interior. No entanto, graças aos beirais, são projetados de uma forma que protege a privacidade dos moradores dentro.
A este nível, subir a escadaria central, levando a uma das mais famosas interiores domésticos do século XX: um longo e baixo sala, como a sala de estar de um navio, varandas alegremente iluminadas, com vista ao meio-dia.
O espaço é dividido em duas áreas, a de jantar e sala de estar, o elemento que simboliza a vida familiar Wright e apego à terra.
A chaminé tem um enorme presença na atmosfera não representa um obstáculo, uma vez que é possível para receber e cercar a continuidade da cobertura através de uma abertura rectangular na sua parte superior. Por sua vez, o teto é dividido em painéis, cada um deles equipado com dois tipos de luz elétrica: balões de vidro em cada lado do centro, maior e escondido atrás das grades, lâmpadas nas áreas laterais , inferior.
Em ambas as extremidades deste caminhos espaciais de longa duração são organizadas que formam um triângulo significa áreas mais íntimos para ser ou para comer. Estes carrinhos são quase imperceptível do lado de fora devido à intensa sombra lançada pelos largos beirais. Estes pneus não pode ser construído em madeira, na verdade, são realizadas por duas vigas de aço escondidas que se estendem por todo o bloco principal.
- Terceiro nível
Os quartos são a este nível, dominando a casa como uma espécie de estilo mirante da torre.
Materiais
A casa está envolta em tijolo Romano e calcário.
Para atingir esses grandes beirais, Wright foi um dos pioneiros no uso do aço na estrutura da casa, através de duas grandes vigas que correm longitudinalmente ao longo da mesma, ancorada na chaminé. Wright, escolheu-se a cobrir as zonas laterais das vigas, deixando uma zona de maior altura no centro, o qual produz um efeito espacial em ambos os ambientes.
O uso de tiras de madeira e perpendiculares à direcção do quarto e lâmpadas ritmicamente colocados reduzir o espaço oblongo sensação longitunalidad. Dois ambientes distintos finais angular em uma curva reforça ainda mais a idéia de que o espaço se estende para fora.
Móveis
Todo o mobiliário foi projetado por Wright, tornou-se especialmente famosa mesa e cadeiras de jantar.
A tabela baseia-se nos quatro cantos, em quatro colunas com lâmpadas de vidro colorido e recipientes para arranjos de flores. Este projeto teve uma idéia clara: as composições florais e lustres que normalmente são colocados no centro da mesa constituem uma barreira visual entre os anfitriões e convidados. Aqui, no entanto, a decoração e iluminação estão localizados nos cantos, deixando-o centro de mesa totalmente gratuito.


























































