Zentrum Paul Klee

Introdução
Paul Klee é um dos artistas mais influentes do século XX. Suas obras são atemporais e heterogênea, continua a ser debatida e manter-se na vanguarda, mesmo com a passagem do tempo.
Artista suíço destacou-se não se limitando a um único gênero, e em vez disso foi influenciado por preocupações em encontrar desejado. Suas configurações de e pinturas abstratas em óleo e aquarela é o seu melhor legado. Sua maneira de retratar e apresentar sua visão das coisas é enganosamente simples e que o torna atraente para os olhos do espectador comum.
Mas o seu trabalho não foi reduzido apenas para pintura e desenho, mas também Klee interessou pela música, escrita, filosofia e ensino.
Em um esforço para construir um museu em memória e homenagem ao mais importante artista suíço e criar um centro cultural para a cidade, este museu é projetada para explicar mais de 40% do total de trabalho de Klee (doado por sua filha Livia ).
O trabalho foi encomendado pelo renomado arquiteto Renzo Piano. O arquiteto genovês é reconhecida mundialmente por obras de grande importância, e sua principal característica é capaz de detectar a essência do lugar, genius loci, e trabalhar para isso. Como Klee, Piano não está vinculado a uma idéia ou preconceito. Suas obras são variados na morfologia, materiais e imagem final. Sua visão é ampla e abrangente, e não apenas procura resolver um edifício, se não melhorar um espaço, e participar e colaborar em questões urbanas.
Em uma entrevista com ele, Renzo Piano disse: “Ser um arquiteto é o melhor do mundo, porque, neste pequeno planeta, onde não há nada mais para descobrir, o design é uma das poucas aventuras esquerda.”
Localização
A Suíça é um país que inspira confiança. Localizado no coração da Europa, o país ganhou sua popularidade devido a seus bancos fortes e melhor produção de chocolate. Suas cidades são muito limpo e organizado. Suas paisagens sempre tem o fundo montanhas nevadas e grama verde em primeiro plano. Pessoas, parte correta e tranquila para este país com a história e turismo cultural.
O museu está localizado no Schöngrüng, a nordeste de Berna. Em meio prado verde tranquila implantado este museu. Com florestas no fundo e os Alpes no fundo, o edifício tenta misturar-se no fundo.
No terreno doado pelo médico Müller, é homenageado postumamente a morte de Klee, que apesar de ter nascido e morrido na Suíça, fez toda a sua obra na Alemanha, porque ele foi negada a cidadania na vida. Assim, como a pretensão de que o artista, o museu foi projetado pelo cemitério, onde os restos mortais de Klee, em um claro sinal de reconhecimento.
Quando Renzo Piano sabia o lugar que iria funcionar, o primeiro pensamento que me veio à mente foi o de usar o contexto para criar uma composição que pode ser apreciado a partir de qualquer ponto de vista “, Klee merece não um museu, mas uma paisagem . Quando eu vi o lugar parecia uma escultura de terra. Em seguida, ele deve funcionar como um camponês “.
Conceito
Piano A idéia norteadora era criar algo mais do que um museu. Como Klee era mais do que um pintor, arquiteto sentiu a necessidade de criar muito mais do que um edifício, causa sensações, uma experiência agradável, e um deleite para o público foram o alvo.
A ironia e drama, muitas vezes mesclado com imagens inocentes nas obras de Klee. A profundidade e complexidade misturado com um único selo.
Artista Renzo Piano levou a leveza, um sentimento de pertença e de luz. Assim, foi decidido criar um lugar, elevar terra terras disponíveis fazer uma obra de arte em si. Como se fosse mais do que um trabalho de pesquisa feito por um agricultor conhecedor e não o resultado de uma abordagem arquitetônica.
Então planejou três colinas. Três ondas que sobem a partir de e para o chão. Com dimensões diferentes, as três ondas de atravessar o chão, como uma escultura ou resultado da própria natureza.
O todo é paralela à auto-estrada e toma a forma curva do mesmo. O design é expressivo e sutil, sensual em suas linhas. As funções estão escondidos dentro ea rara imagem do museu é intrigante e atenção. No entanto, enterrando boa parte do museu e construir um dique de trigo e papoilas à frente, o edifício é ainda mais sorrateira e escala parece diminuído consideravelmente.
Espaços
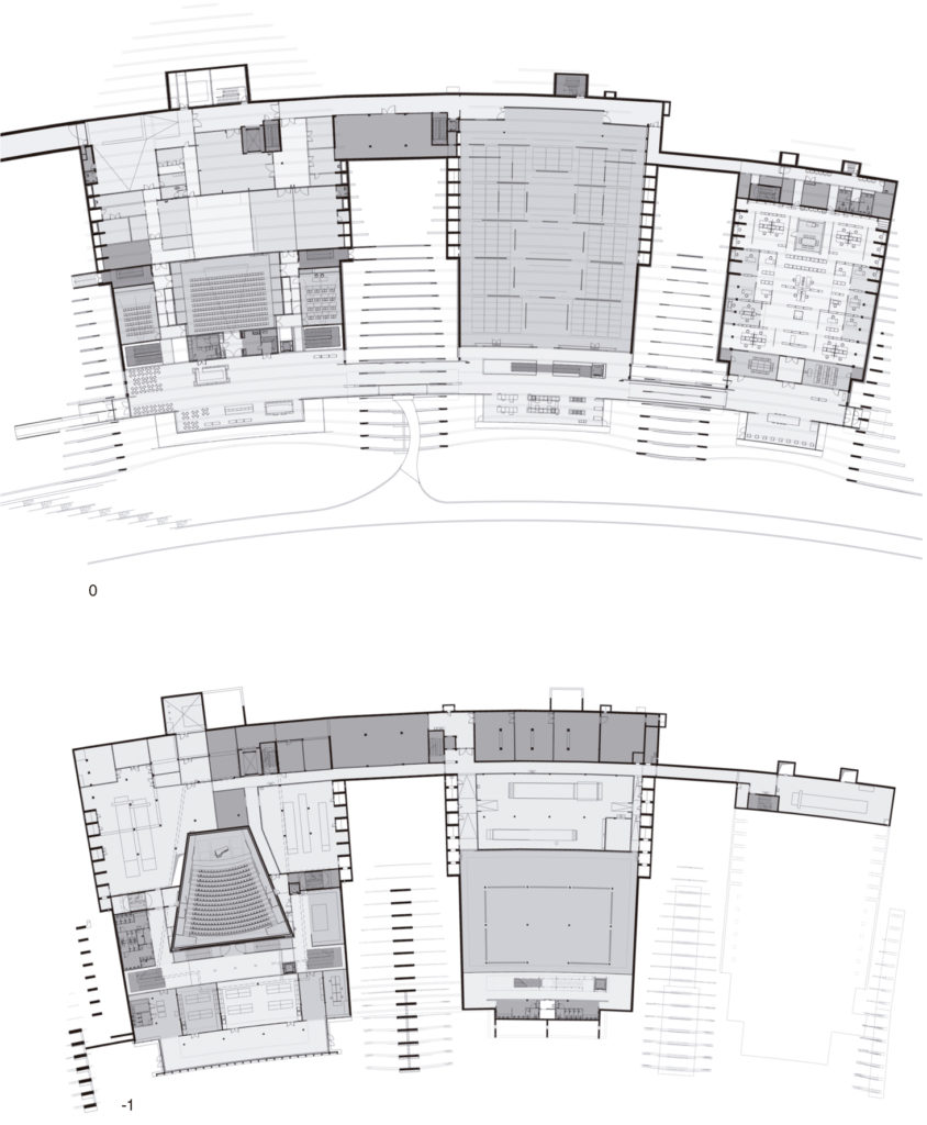
Cada um tem uma função diferente ondulações nele. O primeiro e maior, cobre o hall de entrada, hall de entrada, um auditório com 400 lugares, e oficinas de arte para crianças.
O auditório pode ser utilizado para conferências, apresentações e até mesmo para a nova orquestra “Ensemble Paul Klee” toque para os visitantes. Da mesma forma, oficina infantil visa criar um espaço para os pequenos têm a sua primeira abordagem à arte e para se sentir confortável em um lugar que geralmente não é atraente para eles.
Na segunda onda, a do meio, menor do que a primeira, é a coleção permanente de Paul Klee, e espaço dedicado a exposições temporárias. A galeria tem 1700m2 e paredes que podem ser movidas para formar diferentes especialidades dentro de casa.
No terceiro, o menor de todos, encontra-se a pesquisa e gestão.
Zentrum Estes três corpos são unidos por uma “rua” pedestre constitui a principal rota de circulação incorporando o café, bilheteria e biblioteca. O caminho é fazer o seu caminho através das grandes arcos iluminados e fica a 150 metros do primeiro “monte” para o último.
Estrutura
A concepção do Zentrum Paul Klee é caracterizada por a estrutura de pavimento de aço ondulado. Estas vigas têm as curvas complexas não é igual ao outro, uma vez que a forma de onda estende-se desde a parte dianteira para a parte traseira onde é perdido juntamente com o solo, e cada “onda” tem altura diferente. Estima-se que foram usados os inteiros construção 4.2kms vigas.
A geometria da construção de modo especial é o facto de a parte dos arcos de aço é ligeiramente inclinada, mas sempre em ângulos diferentes. Os arcos são tensionadas por tirantes de compressão diretamente integrados na estrutura do telhado para evitar arcos estão inclinados para trás. As extremidades dos arcos de aço são comprimidos em conjunto com a ajuda de bandas que estão conectadas com o solo e as placas de piso para evitar o escorregamento do aço arqueia sua base. Cada uma das vigas curvas, com diferentes pesos, foi construído individualmente.
Seções individuais foram os primeiros a cortar a partir de folhas grandes do metal usando uma máquina de corte controlada por computador. Em seguida, moldado a sua forma final e, finalmente soldados juntos. A forte curvatura da vigas de aço restrito este processo de soldagem pode ser feito por máquinas, o que significa que mais de 40 quilômetros foram soldadas à mão.
Depois de rever os materiais alternativos, tais como o alumínio, cobre e titânio, foi decidido usar uma tampa endurecido. Os critérios ecológicos, econômicos e técnicos foram decisivos para esta escolha.
A estrutura do convés, ao lado da fundação e da fachada, foram simuladas por modelos 3D de computador e analisados por muitos especialistas.
Materiais
Os materiais utilizados por Renzo Piano para o Zentrum são poucos e preciso. O vidro para fachadas de vidro, aço cinza, piso interior e carvalho são tudo o que levou para o arquiteto para cumprir seu plano.
A isto se soma apenas usando guarda-chuvas na fachada principal, usado para controlar a entrada de luz natural, como muitas das obras de Klee são muito suscetíveis a serem afetados por ela.
De dentro, a estrutura de aço permanece visível, e os grandes arcos são acompanhados por tectos de vidoeiro com cor natural ou pintado de branco. Este uso de alguns materiais Piano porque queria enfatizar o fato de que a paisagem exterior projetara a cor necessária dentro do museu.
Outro aspecto a destacar é que Piano queria que o edifício poderia ser sustentável e ter o menor consumo de energia possível. Assim, os estudos de impacto ambiental foram realizados em cada um dos materiais. Assim, as vigas de aço foram estudados durante um baralho inteiro teve um bom isolamento, bem como o uso de vidros duplos: assegurar menor perda de energia durante o inverno e arrefecimento no verão. A isto se soma o piso de madeira tem milhares de pequenos e quase imperceptíveis fendas que permitem que o ar frio para passar por eles, e ir aquecer como você monta, apenas para ser expulso para o exterior e assim promover ventilação adequada.
Video
https://youtu.be/H85mG9AZ5HI






































































































